深圳

切换城市

24小时咨询热线

400-608-0035

移动看房

您当前的位置: 首页 > 新房 > 京基御景天峦府

商业配套齐全 知名开发商 品牌物管
均价:50000元/㎡

有效期时间至:2024-12-08 00:00:00

设置降价、开盘提醒,楼盘动态早知道

  • 物业类型: 写字楼 公寓

  • 主力户型:75㎡95㎡115㎡120㎡135㎡150㎡

  • 开盘时间:2022年09月29日 开盘提醒

  • 预售许可证: 深房许字(2022)罗湖004号

  • 开 发 商:深圳市广积房地产开发有限公司

  • 楼盘地址: 深圳市罗湖区莲塘

微信扫码拨号

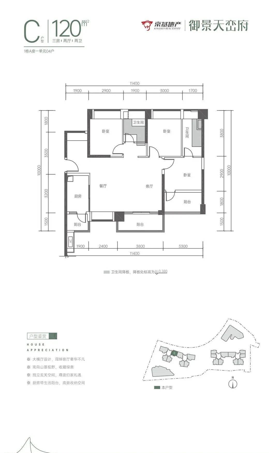
  • 3室2厅2卫1厨

    建筑面积:120.00㎡

    户型特点: 户型方正采光充足明厨明卫

    热度:

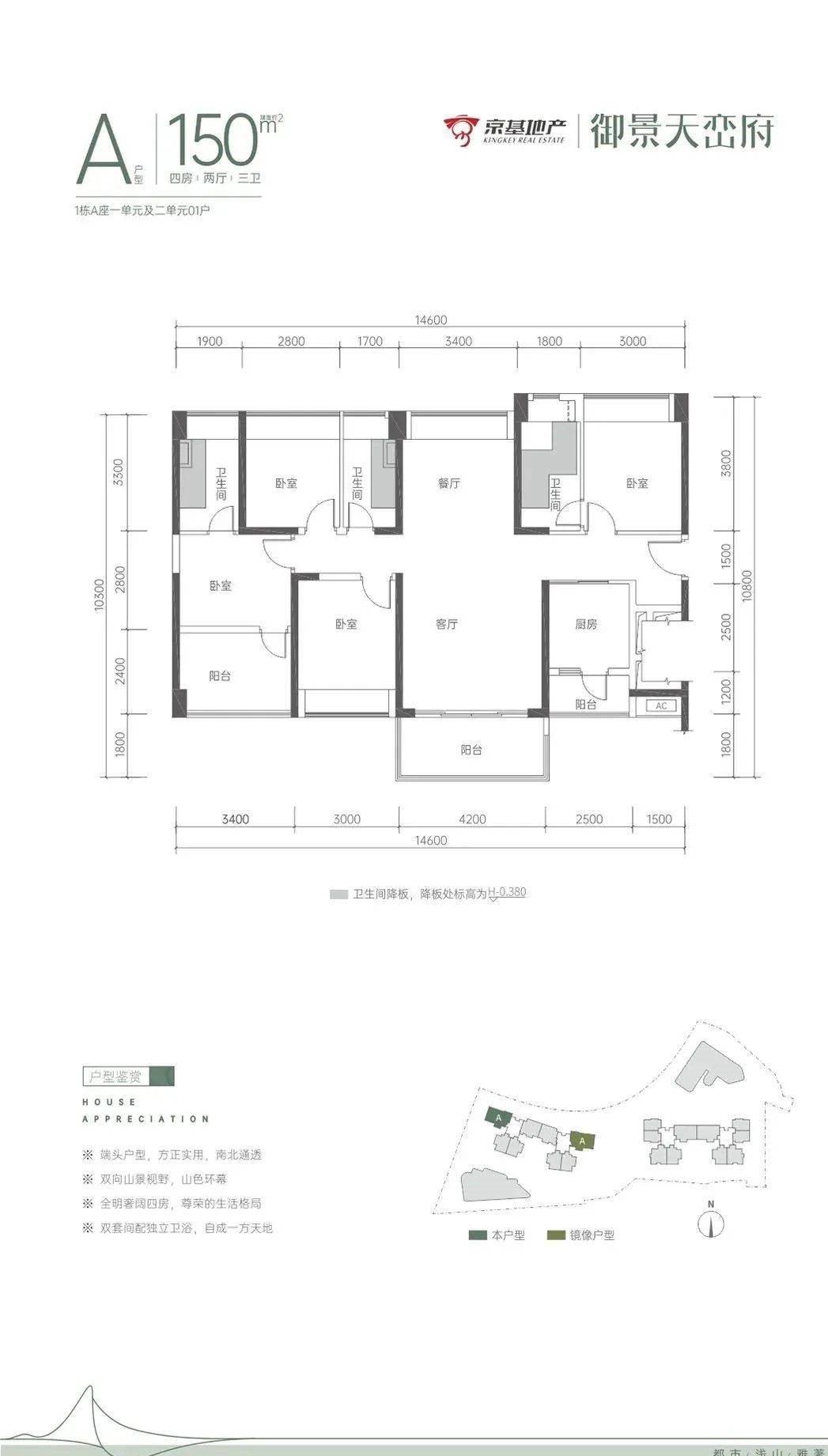
  • 4室2厅2卫1厨

    建筑面积:150.00㎡

    户型特点: 户型方正采光充足明厨明卫全明格局

    热度:

最新动态

更多动态 >

选新房 找好经纪

  • 客户立场

  • 分析选盘

  • 专车接送

  • 全程免费

  • 营销中心

    已带看客户518

    专业 周到 热心
楼盘信息
楼盘类型 高层 装修状况 精装 物业类型 写字楼,公寓
占地面积 15000 建筑面积 150000平方米 规划户数 756
容积率 6.81 绿化率 40 停车位 902
开盘时间 2022年09月29日 主力户型 75㎡95㎡115㎡120㎡135㎡150㎡ 预售证号 深房许字(2022)罗湖004号
交房时间 2025-12-08 00:00:00 房屋产权 70年 售楼处地址 暂未数据
开发商 深圳市广积房地产开发有限公司 物业公司 京基物业 物业费 5.2元/平米

周边配套

搜索到条记录

我要计算房贷

选择基本情况,帮您快速计算房贷

房贷计算器
计算结果
均价: 估算总价:
首付:
每月还款:
利率公积金 % 商业性 %
以上结果仅供参考

预约楼盘服务

获取最新楼盘动态、一手楼盘美图、免费专车接送等服务
万/套

您可能感兴趣的楼盘

24小时咨询热线

400-608-0035

在线咨询

微信扫码拨号

省时 高效 问底价
var styleJson = [ { "featureType": "land", "elementType": "geometry", "stylers": { "visibility": "on", "color": "#091220ff" } }, { "featureType": "water", "elementType": "geometry", "stylers": { "visibility": "on", "color": "#113549ff" }