⭐宝安都市核心圈+5/15号线双地铁口品质现楼+本项目可按照积分政策入学
玺玥麓坊营销中心电话:400-608-0035销售中心【已认证】
在售户型图丨项目介绍丨最新房源丨周边配套丨详细解答〢

【九大必买理由】
【核芯地段】宝安都市核芯资产,地段决定价值
【便捷交通】家门口,双地铁(5/15号线(在建中)洪浪北站约100米)
【品质现楼】毗邻千万级豪宅社区,高品质现楼,即买即享受
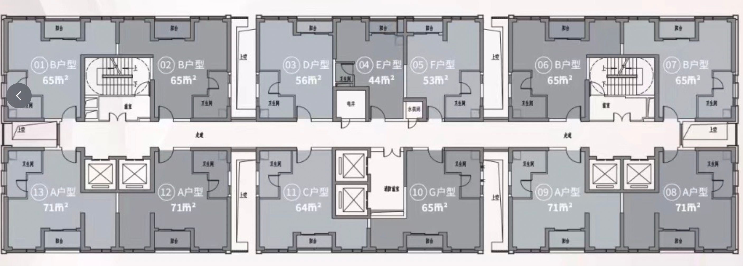
【舒适梯户】6梯13户,3个独立电梯厅,便捷通达
【至臻产品】双大堂设计,建面约44-71㎡1-2房精奢小户型
【大城配套】30万㎡大城综合体,一路之隔勤城达K+/中洲•πmall
【邻近名校】邻近宝中名校,3所中学+6所小学环绕,一站式教育
【绿意生态】6大公园环绕(宝安/灵芝/新安公园等),健康绿意生活
【品牌保障】宏发43载,深圳开发20余城;宏发物业,国家一级资质

【世界前海核“芯”版图,擎领湾区增长极】
大湾区国际门户枢纽地位,大前海总体发展规划,共推区域统筹、功能统筹、陆海统筹、岸线统筹,共建全球先进城区,宝安中心区成为国际化城市新中心,宝安都“芯”强势崛起,全面接轨前海标准。
营销中心预约热线:400-622-8823

【城“芯”所在,稀贵之地,新安都市核心区】
项目位于西部黄金中轴发展线上——新安,与前海共同打造湾区商业中心,沿创业一路、二路,打造创业路“宝安中央商务带”。
前海+宝安中心区双中芯辐射,城市核芯资源尽皆于此,再启生活新想象。

【人贵于邻 居奢于圈】
玺玥华府在旁,千万级大社区,形成全龄活动空间。
高净值人群聚集地(中洲、华联、大悦城、勤诚达等),共鸣圈层向往。
高新科技产业及总部汇聚于新安,与众多高科技巨头为邻(如腾讯、vivo、亚太卫星、欣旺达、顺丰等集团),与万亿级市值大铲湾相近,时代菁英比邻而居。

【多维地铁环绕,串联深圳顶豪圈层】
地铁5号线(洪浪北地铁口):向南3站到达宝安中心站(串联1号线)、6站到达前海湾站(串联1/11号线);向北2站到达留仙洞总部基地、7站到达深圳北站;
地铁12号线:从5号线洪浪北一站抵达接驳12号线灵芝站换乘,轻松贯穿蛇口、南山中心区以及宝安区;
地铁15号线(在建中):深圳“一环线”,联通大铲湾(预计未来将容纳8-10万就业人口)、南山西丽、南山科技园,打造前海内环黄金圈,本项目7站抵达企鹅岛,核心地段,好租又好住。

【邻近名校,6所小学+3所中学】
6所小学: 宝安中学(集团)外国语小学部、宝安中学(集团)实验学校(小学部)、孝德学校、上合小学、宝民小学、灵芝小学
3所中学: 宝安中学(集团)(初中部)、宝安中学(集团)外国语中学部、宝安中学(集团)实验学校(小学部/中学部)

【多元醇熟配套,纵享人文艺术高地】
6大生态资源:约12万㎡灵芝公园、约72万㎡宝安公园、新安公园、洪浪公园和尖岗山公园等生态绿境;
商业资源:自带约3万㎡仟里食家商业mall,周边汇聚超60万㎡中洲πmall、勤诚达K+广场、海雅缤纷城、前海壹方城等大型购物中心;
医疗资源:距离深圳宝安中医院(三甲医院)约1公里,距离深圳市宝安人民医院(三甲医院)约1.5公里,距离宝安妇幼保健院约3.5公里,医疗资源丰富。

【宏发43载 深圳已开发20城】
秉持“以产促城,以城兴产”核心理念,用实力和口碑,铸造城市篇章。

【麓生活·尊崇服务体系,考究精致维度】
宏发物业——国家一级资质物业服务企业
针对玺玥麓坊业主量身打造——麓生活·尊崇服务体系
优享5感日常服务(尊重感、愉悦感、优享感、舒适感、安全感)
10重尊享增值服务+12大星级定制化服务,礼遇峯层的生活和文化格调

【登峰作品,献给人生喜悦时】
双入户大堂,精奢小户型,至臻归家礼遇。
建面约44-71㎡臻品现楼,致敬时代峯层。
项目标准层平面图

⭐项目实拍图

温馨提示:过来本楼盘售楼中心现场参观样板间请记得提前拨打400热线预约,感谢您的配合!
玺玥麓坊售楼处电话: 400-608-0035 预约来访下定当天更享折上折!!
免责声明:
1、本资料对本项目周围交通、商业、文化教育设施以及其他市政条件的介绍,旨在提供相关信息,具体以政府规划及现场实际为准。
2、效果图是规划意向的概念设计展示,不作为开发商承诺,具体规划内容以政府部门相关批复为准。
3、本文所提及一切图文资料以政府最后审批之法律文件及买卖双方签订的买卖合同为准。
4、本文所述内容和意见仅供参考,不构成市场交易依据和投资建议。
5、本文中所述地铁站台数据,实际具体为地图官方数据为准。
6、项目户型产品种类较多,各户型由于楼栋位置、外立面效果等因素,在结构上可能存在细微差别,效果图并不能体现所有户型局部的细微变化,所购买户型结构以买卖双方签订的《深圳市商品房买卖合同(一手房现售)》之约定为准。
制作时间:2024年10月




