当前位置: 首页 > 资讯 > 前海整栋写字楼开发商直租,物业资料
前海整栋写字楼开发商直租,物业资料
来源: 作者:商置新房 2024-07-26 11:34:02 点击数:157
阅读声明:文章内关于户型面积的表述,除了特别标明为套内面积的内容外,所涉及户型面积均为建筑面积。
【前海科兴科学园】整栋推介5号楼,碧海湾地铁口超大商务综合体
开发商直租,招商中心400-608-0035
面积:38680㎡(3-21层)
单层面积约:2000㎡
租金:120元起
管理费:15元/㎡
使用率:72%~75%
层高:4米
中央空调24独立控制小时计电费
——————————————
物业形态:栋办公塔楼及商业群楼
地铁:11号线碧海湾地铁A出口400米
公交:项目自带公交总站(20多条线路)
景观:180°一线山海景127万自然生态
生态化办公,更有3万平量身定制企业独栋
电梯:每栋5-10部通力电梯
大堂:每栋独立大堂挑高11米
停车场:三层2800个、月卡500
【实拍大厦外观】

【大堂效果实拍】
开发商直租,招商中心400-608-0035

【电梯间】

【标准层实拍】

开发商直租,招商中心400-608-0035
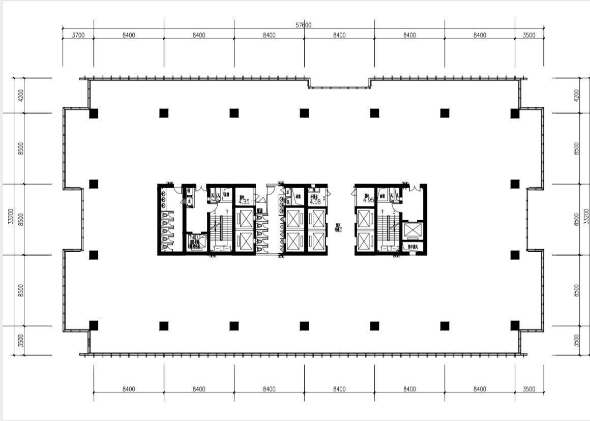
【标准层户型平面图】

【园区环境】



【六大核心价值】

轨道
距地铁11号线碧海湾站A出口仅约400米
公交
自带公交总站,20余条公交线路
自驾
4条主干道+1条高速,临近沿江高速路口,30分钟抵达深圳各区,60分钟通达粤港澳城市群

开发商直租,招商中心400-608-0035

自带旗舰商业,满足企业多元化商务需求
多重垂直绿化,升级科创总部办公体验



开发商直租,招商中心400-608-0035





【品质办公】
双银LOW-E玻璃幕墙,节能降噪,隔音隔热
约11米科技艺术大堂,打造国际商务接待体验
冰蓄冷中央空调,全天候24小时,随开随用,分户计量,降低企业运营成本
使用率高达70%,直降企业运营成本,为总部运营赋能
【高效办公】
100:1超量停车位配置,停车无忧
进口芬兰通力电梯,设计等候时长小于30秒,可直达停车场,无需转换



上一篇: 2024年7月26日房地产新闻简讯
下一篇: 深圳金迪世纪大厦 写字楼直租咨询大厦详情
相关阅读
查看更多网友评论(文明上网,理性发言)
报名看房