当前位置: 首页 > 资讯 > 龙华凯立方广场写字楼,研发用房楼盘详情
龙华凯立方广场写字楼,研发用房楼盘详情
来源: 作者:商置新房 2024-06-10 11:44:24 点击数:172
阅读声明:文章内关于户型面积的表述,除了特别标明为套内面积的内容外,所涉及户型面积均为建筑面积。
龙华凯立方广场现场销售电话:4006080035
✅深圳【龙华凯立方广场】售楼处电话:4006080035【售楼中心24小时电话】
✅龙华凯立方广场售楼中心电话4006080035(开发商线上售楼处电话),含开盘消息、交房时间、楼盘详情、房价、户型、详情、得房率、售楼处地址、首页网站、销售中心、楼盘地址、户型图、交通、备案价、项目配套、营销中心、周边配套等详情咨询。
单价1字头起
出售建面:426-453-470-2200㎡;
工抵价:10000元/㎡<13000元/㎡
大道封面资产 有氧生态办公
地铁:6号线双地铁口;4站深圳北、高效便捷;
100㎡花园阳台、套内73%使用率;
2024年12月交付;
————项目地址
大浪街道龙峰三路与联润路交汇处

【K立方广场项目基本信息】
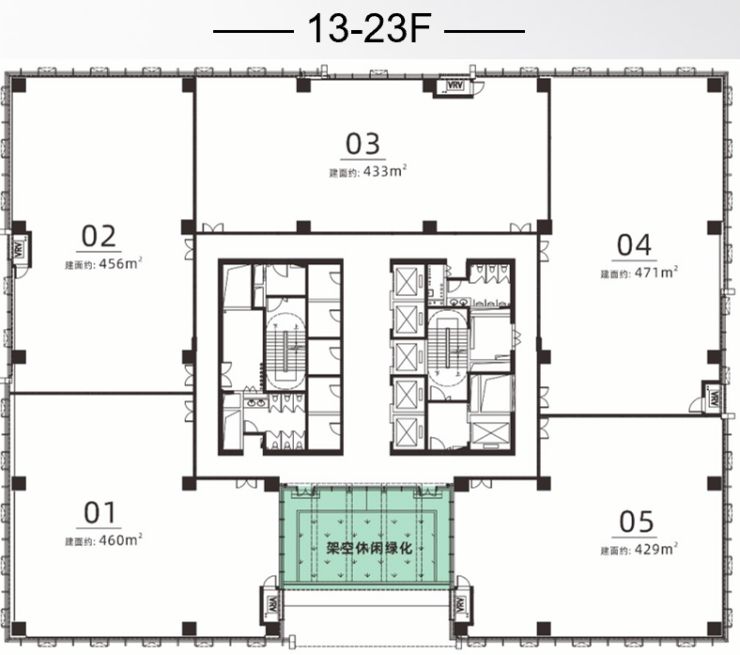
总建筑面积:83523.15㎡
研发用房建筑面积:48609㎡
容积率:4.56
绿化率:30%
建筑高度:99.45米
标准层层高:4.2米/4.5米
面积段:约421-476㎡-2200㎡(整层)
使用率:约73%
大堂:超1300㎡,高度约9.9米
电梯:11部2.5m/s-4m/s通力品牌电梯
停车位:402
研发用房物业费:11.5元/㎡/月
产权:50年(2021.1.22-2071.1.21)
交楼标准:毛坯
交楼日期:2024年12月31日
【K立方广场 9大必买理由】
龙华黄金地段 总部汇聚 5G产业聚集地
《粤港澳大湾区发展规划纲要》提出,大湾区将建设世界级城市群,龙华定位为中轴区域核心!立于深圳CBD中轴商务带,立足于都市核心区战略定位和新兴产业高地,打造数字龙华的先行示范新引擎。
项目占据龙华商务中心与数字经济圈的黄金交汇点,将吸纳龙华5G产业、数字科技时尚创意、智能制造等新兴产业,助力企业布局高远未来,满足大量商务精英人群需求!

南山进龙华第一站 汇聚“三轨交通”全程快速通勤
1高铁2地铁1轻轨
1高铁:4站抵深圳北高铁枢纽站,乘广深港高铁2站抵香港西九龙,畅达全国
2地铁:直线距离约900m即达地铁6号线阳台山东站,享高效通勤
未来2站接驳地铁13号线 (在建),连通深圳北CBD、福田中心、南山科技园、后海总部基地等7大核心商务区
1轻轨:从阳台山东乘坐有轨电车(在建),线路覆盖大浪街道中心区、大浪时尚小镇核心区
1横1纵高速
一横:沈海高速可快速到达深圳宝安国际机场
一纵:龙大高速直达光明中心区及东莞松山湖
2快速2主干


周边超800万㎡旧改 重朔区域城市蝶变


繁华商圈 总部聚集 品质人群 丰盛配套


项目以3KM极萃体验为半径,高度聚合市政、商务、居住、酒店、文化休闲等城市功能,无论对接政府、企业、产业上下游,皆能游刃有余。


推窗见景 坐看阳台山公园永久生态景观


超1300㎡环抱式大堂 尊享高贵商务礼遇
大堂高约9.9米,双LED巨型屏幕,高端干挂石材打造,全铝板核心筒,塑造高雅企业商务形象。

开敞式电梯厅 阳光办公空间


约百平景观大露台
每层规划约百平景观大露台,健康生态办公休闲空间,与自然共呼吸!

【项目图片】


研发办公户型鉴赏
标准层面积约2200㎡






龙华凯立方广场现场销售:4006080035
✅深圳【龙华凯立方广场】售楼处电话:4006080035【售楼中心24小时电话】
✅龙华凯立方广场售楼中心电话400 088 3336(开发商线上售楼处电话),含开盘消息、交房时间、楼盘详情、房价、户型、详情、得房率、售楼处地址、首页网站、销售中心、楼盘地址、户型图、交通、备案价、项目配套、营销中心、周边配套等详情咨询。
免责声明:本文所有文章、图片、音频视频文件等资料版权归版权所有人所有,因非原创文章及图片等内容无法一一和版权者联系,如原作者或编辑认为作品不宜上网供大家浏览,请及时来电告之,我们将立即予以修改或删除。本文如无意中侵犯了某方的知识产权,告之即删。
上一篇: 深业中城49-286㎡臻稀公寓|价格|项目资料|售楼处电话
下一篇: 锦绣时代广场
相关阅读
查看更多网友评论(文明上网,理性发言)
报名看房