锦绣时代广场
来源: 作者:商置新房 2024-03-01 12:03:44 点击数:341
阅读声明:文章内关于户型面积的表述,除了特别标明为套内面积的内容外,所涉及户型面积均为建筑面积。

锦绣时代广场
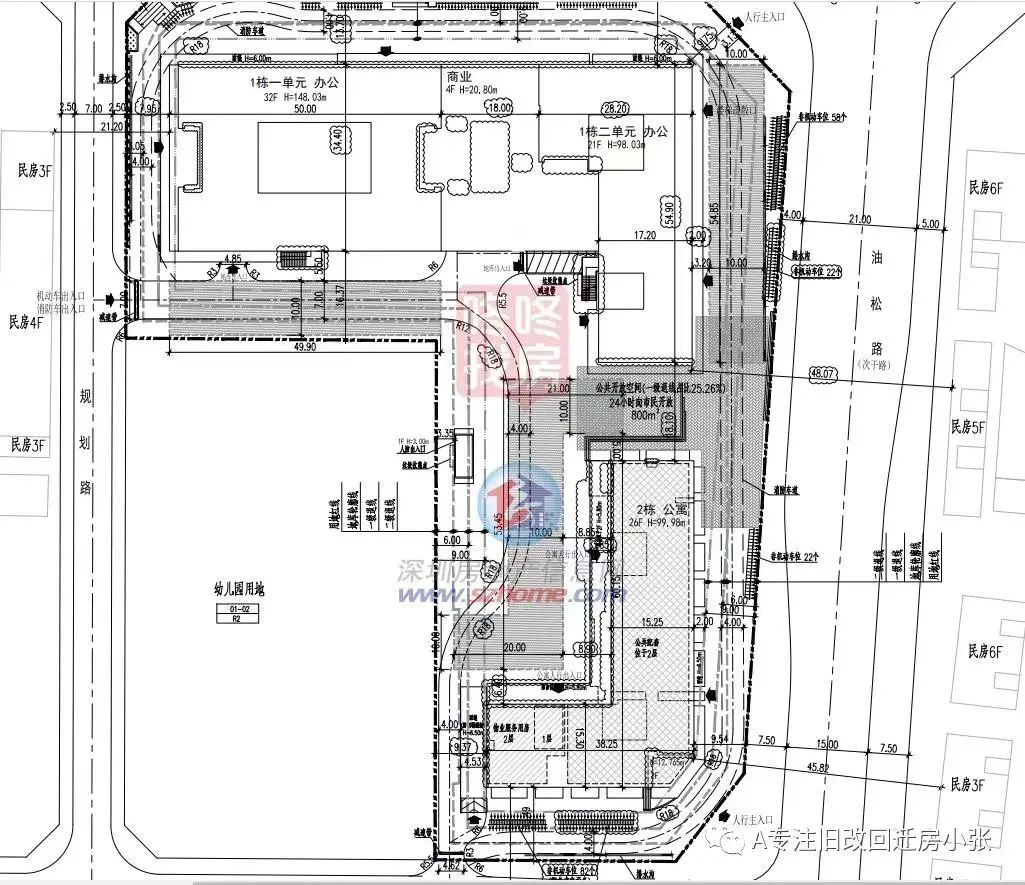
锦绣时代广场项目位于深圳市龙华区民治街道工业路与油松路交汇处,总占地面积约1.3万㎡,建面约12.95万㎡,规划2栋,分为三栋塔楼,其中1栋一单元32层、1栋二单元21层,均为办公楼,2栋26层,为公寓楼。
平面•户型图

备案价格表
区域•地段
【宇宙中心-引领时代波澜壮阔】
数字龙华 都市核心
作为深圳都市核心战略地位的龙华,将打造新兴产业高地和时尚产业新城,将释放产业升级、片区带动的巨大潜能。
为全面巩固都市核心区地位、建成粤港澳大湾区现代化国际化创新型中轴新城,将坚持数字产业化、产业数字化、治理数字化、数据价值化的理念,加快数字化发展,形成数字经济、数字城区、数字治理“三位一体”的发展格局,全面推动产业动能、城市可持续发展。
深圳中央活力区
依托龙华区被纳入都市核心区的契机,以“一圈一区三廊”区域发展格局为重点,强化商务、商业、商住、休闲、生态等功能,以点带面把约40㎞²的南部区域打造成深圳的中央活力区。随着深圳中央活力区的建成,将进一步发挥龙华宇宙中心的地理优势,承接南山、福田、罗湖三大核心区的各类资源,将龙华发展拔升到一个崭新的高度。
龙华国际商圈
锦绣时代广场位于国家打造产值超500亿的市级核心商圈,建设智慧商圈试点,瞄准5G前沿技术,引入体验型、新零售业态,打造品质生活休闲中心;布局科技成果展示发布平台、智能科技科普体验中心,提供多元交流场所,激活地下商业连廊活力,丰富地下商业空间业态,打造科技商贸服务中心;聚焦新生代主题文娱商业,布局数字文娱体验业态,营造沉浸式互动公共空间,吸引文创企业和青少年人群,打造潮玩时尚娱乐中心。
【宇宙中心-城市繁华未来兑现】
雄踞工业路更新版图支点,执掌区域发展红利。据深圳政府“十四五”规划,龙华区沿工业路进行矩阵布局,启动城市更新,房企强势入驻,打造宇宙中芯置业新热土。
交通配套
立体枢纽 构建高效城市生活圈
七地铁环绕
4/5民治站/6/10号线已通车,22油松站/25上油松站/27号线松和站(规划中)交汇于龙华油松片区,畅达深圳北站、福田CBD、后海中心区
五主干道
民治大道/龙华大道/工业路/布龙路/梅观路,铺就片区骨干交通,快速通达福田、南山、罗湖
一城际畅行
深大城际贯穿深圳东部-西部发展轴,直达深圳宝安国际机场
休闲•生态
距离项目约2.4公里有2.6 万㎡ 的龙华艺术中心,4.5万㎡ 的龙华书城和11.4万㎡ 的龙华文化体育中心,车行仅需10-15分钟文娱丰富,此外还有龙华红山四馆一体(美术新馆、图书馆、展览馆、演艺中心四馆和简上体育综合体)市级文化地标分布周边,驾车仅需17-20分钟即可到达
附近有红木山水库、红木山郊野公园,龙华公园
商业•配套
【宇宙中心-万般繁华轻松执掌】
六大购物MALL
壹方天地/星河ICO/绿景左阾香颂/岁宝PLAZA/天虹商场/优城购物中心六大购物MALL构建闲逛天地
3500㎡情景街区
规划体验式情景街区,楼下即享自有随性年轻生活场。
学校 医疗
深圳市展华实验学校,松和小学
【宇宙中心-医疗全面全家安心】
政府医疗投入巨大,配套完善。15分钟到达龙华首家“三甲”医院——深圳市龙华区人民医院。规划一家“三甲”医院——新华医院(建设中,预计24年3月试业)及“三甲”儿科医院——深圳市第二儿童医院(建设中,预计23年12月试业)。
小区•品质
13万㎡立体社群-精英社交生活场打造多元化生活场,集精品商务公寓、写字楼、酒店、情景街区形成多元化布局,构建涵集居住、办公、社区于一体的城市立体垂直场。
精品公寓:3.6m层高,多重空间潜能
商务写字楼:擎领城市新高度,再造塔尖格局
高端酒店:精英人士身心休憩空间,待客休闲沙龙CLUB
3500㎡情景商业街区:楼下即享自有随性年轻生活场。
【宇宙中心-简约时尚园林景观】
采用简约成熟稳重的设计理念,通过点缀在公共空间中的绿植景点和商业活动区的水景花坛,将开放空间与环境相互融,塑造时尚与活力的城市景观公共空间。
高能百变空间-承载独一无二心间小宇宙
建面约27-38㎡高能空间
3.6m层高 自由创想空间
户户打造全明观景阳台
民水民电通燃气打造都市年轻人的专属定制空间,城市风景尽收眼底,轻松实现
安家梦想;
预约看房,置业顾问一对一对接,享受额外优惠!
温馨提示:看房需提前预约,感谢您的配合!
上一篇: 2月29日房地产新闻简讯
下一篇: 维港1号
相关阅读
查看更多网友评论(文明上网,理性发言)