当前位置: 首页 > 资讯 > 楼盘导购 > 前海鸿荣源中心·胤璞 在售户型图丨项目介绍丨房源丨周边配套
前海鸿荣源中心·胤璞 在售户型图丨项目介绍丨房源丨周边配套
来源: 作者:商置新房 2024-07-21 12:03:51 点击数:199
阅读声明:文章内关于户型面积的表述,除了特别标明为套内面积的内容外,所涉及户型面积均为建筑面积。
深圳【前海鸿荣源中心·胤璞】
售楼处热线:400-608-0035【销售中心】
预约看房,置业顾问一对一对接,享受额外优惠!
在售户型图丨项目介绍丨房源丨_周边配套丨详细解答
开发商售楼处直销_欢迎来电预约享受内部折扣_恭迎品鉴〢
温馨提示:看房需提前预约,感谢您的配合!

鸿荣源中心·胤璞前海首排一线永久海景稀缺资源,高奢品质,身份象征在售:85-130-160-360㎡1-4房
PART1项目简介
01 项目基础信息
占地面积:约5万㎡
建设用地面积:约3.8万㎡
总建筑面积:超34万㎡(2栋甲级办公楼、1栋五星级酒店,2栋服务式公寓)
梯户比:T1栋27层3T2户 T2栋41层2梯4户
层高:3.3-3.5米
商务公寓:约5.3万㎡
商务办公:约17.2万㎡
酒店:约5万㎡
商业:约6.4万㎡
公寓、商业建筑设计公司:LEAD8写字楼、酒店建筑设计公司:美国GP
公寓建筑面积:约5.26万㎡
总套数:约300套
产品面积:86-130-166-366㎡(1房-2房-3房-4房)
产权年限:40年(2013年-2053年)
开发商:鸿荣源集团
物业公司:鸿荣源物业
交楼标准:精装(大师定制)
交楼时间:2021年10月底
物业管理费:12.8元/㎡·月
单价:15-30万/㎡
地铁:项目与前海交通枢纽地下联通;5号线(桂湾站);1/5/11号线(前海湾)

02项目地址
前海鸿荣源中心·胤璞位于前海之心,湾景天际线标志性建筑,前海滨海大道与临海大道交界处,距离地铁5号线桂湾站约200米左右。
北面与周大福金融大厦相邻,后者将入驻周大福内地总部、汇丰集团华南区总部等港资元素;
东面与卓越前海金融中心、华润前海金融中心等项目一路之隔,将来的前海万象系列购物中心便坐落于此;
东面临近前海湾,且与规划中的剧院、公园相邻,公建部分的建筑相对低矮,搭配形成错落有序的天际线;
项目所在的桂湾片区为前海的核心区域,规划重点发展金融、信息、贸易、会计等生产性服务业,吸引企业总部集聚,同时发展生活性服务业,打造集中展示前海整体城市形象的核心商务区。
桂湾片区目前已规划、在建和建成的项目相对较多,土地属性也比较丰富多元。除了已基本建成的华润、卓越、恒裕、前海时代一二期住宅项目外,还规划有剧院、国际会议中心、前海湾综合交通枢纽等。



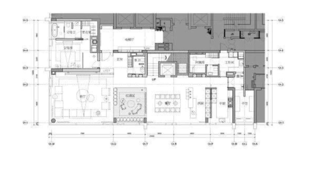
T2栋(41层2梯4户,人脸识别到层)
86㎡ 1套房+1书房,客厅、卧室全朝东南,看花园和城市夜景;
130㎡ 两房两厅两卫,客厅和两间卧室都朝东南向,4.5米客厅开间,7.5米大阳台,看桂湾河、部分海景和城市景观;
135㎡,两房两厅两卫,户型亮点:双龙抱珠,厅出阳台;两卧室和客厅相同景观,都可享受一线海景、18万演绎公园景观;
166㎡平层,三房、两厅、三卫,户型亮点:7.8米超大开间,大横厅转角270℃无敌一线海景及18万演绎公园景观,可以说除了卫生间全是海景、公园景观及摩天轮景观


T1栋楼王(27层3梯2户,人脸识别,专梯入户)
366㎡平层,4房3厅4卫4阳台+工人套房+洗衣间,户型亮点:主佣电梯分离入户,10米开间超大横厅设计,71万㎡双公园环抱、270度一线无敌海景、多变的城市景观以及大小南山复合景观汇聚一身,除了电梯,全是景观


04项目图片
会所





样板房





价值一 立体枢纽 自由切换
前海作为大湾区核心交通枢纽中心,将构建“9+2+1”陆海空立体交通构架,加快前海与香港等湾区城市互联互通,加速链接全球核心城市,四通八达的先进交通规划,助您愉悦出行。
大湾区的交通中心在前海 7+5轨道,超200万平米的亚洲最大交通枢纽
前海综合交通枢纽位于前海桂湾片区,占地约20万平米,建筑面积超200万平方米,总投资约288亿,目前是在建的亚洲最大的交通枢纽。前海综合交通枢纽定位为对外交通中心、通勤中心,是穗莞深城际线、港深西部快线、深圳地铁、常规公交线路、出租车及社会车辆等多种交通接驳方式于一体的综合性交通枢纽。
前海综合交通枢纽由享誉世界的德国建筑师事务所GMP负责规划,包括地上和地下两部分

地上部分的开发早已不仅限于交通,而是围绕着交通所带来的各种城市功能的聚集。除了出租车和公交系统,前海综合交通枢纽的地上部分还有九栋超高层建筑,包括3家酒店和办公、公寓等业态。另外还规划有大型商业配套,办公居住、休闲娱乐,一站尽享。

(地上建筑效果图)
地下部分则是一个多维度复合交通体系,规划共有6层,融合了地铁、城轨、高铁
地下5、6层
为满足未来前海片区需要,地下5层、6层将建成一个拥有5300个停车位的停车场,预期是深圳最大的停车场。
地下4层
地下4层是两条城际轨道线:港深西部快轨和“穗莞深”城际轨道线。
港深西部快轨建成后,从前海出发15分钟可达香港(快轨支路直通中环),25分钟内港深机场互通,同时还预留了出入境口岸及机场值机服务设施。未来前海综合交通枢纽将是广深港3大珠三角超级都市的连接中心,形成世界级经济发展轴。

地下3层
3条城市轨道线:深圳1、5、11号线,三条地铁线交汇的前海湾站目前已开通。15分钟内即可抵达福田高铁站、宝安国际机场T3航站楼。
正在建设中的9号线西延线预计年底开通,便捷通往南山科技园、红树湾,正在建设的20号线,与11号线、穗莞深城际线换乘,未来将通往机场、新的国际会展中心。
未来前海轨道网密度达到每平方公里3.5公里,将成全球地铁密度最高城区之一。
地下1、2层
地下一层和二层是商业区。
此外,前海综合交通枢纽还规划有光明快线、坪山快线、深惠城轨、深珠公铁通道、双Y连接线。

未来,前海将通过高铁、城轨、隧道、桥、联通大湾区各大主要城市!
一个世界级的交通枢纽正在兑现!
价值二 国际化城市新中心
粤港澳大湾区规划纲要发布后,前海规划升级为:国际化城市新中心!
《粤港澳大湾区发展规划纲要》第十章:
《规划纲要》第十章单列一节介绍前海,并提出“建设国际化城市新中心”。
3.12《深圳特区报》A7版报道:

这里面有两个关键点,一个是国际化。
深圳和香港、北京、上海比最大的不足在哪里呢,很多人会说,深圳在历史文脉、教育资源、医疗资源上还有非常大的差距。其实,深圳跟香港、北京、上海比,还有一个巨大差距,就是国际化的水平。
走在香港、北京,上海的核心城区,你随时随地都能碰到外国人。但是在深圳,你可能只能在蛇口的少数酒吧等这样的区域,才能看到几个外国人。
根据规划定位,未来,前海就是深圳国际化水平最高的一个中心区。

未来前海将成为深圳国际化程度最高的城市新中心。
未来前海的样子,看看拥有中央公园、博物馆、艺术馆等丰富配套的曼哈顿

前海将按照“公园中建城市、城市中建公园”的理念,规划“一湾、两山、五区、四岛”结构,建设国际化城市新中心。
“一湾、两山、五区、四岛”
一湾:生态前海湾
两山:大南山、小南山
五区:桂湾区、前湾区、妈湾区、蛇口片区、宝安中心区
四岛:国际科技创意岛、深港服务贸易岛、国际交流会议岛、深港航运物流岛
价值三 丰富配套
24小时不落幕的人文高地,伯克利未来音乐中心、前海国际金融中心、前海演艺中心、前海综合交通枢纽、欢乐港湾等世界级城市客厅配套咫尺尽享。

价值四 首排永久无敌景观
18万㎡演艺公园、45万㎡桂湾公园双公园环绕,绝美前海湾尽收眼底
独有的公园街区式商业,多功能复合店铺的空间设计,为商务与休闲提供多元服务,让工作与生活达到健康平衡。

桂湾公园,位于前海鸿荣源中心·胤璞项目南侧,毗邻前海桂湾金融先导区,东至月亮湾大道,西至滨海岸线,北临海滨大道及桂庙路,南至前海大道及桂湾河南街,占据前海的“心脏”位置,可通过地铁9号线梦海站D出口直达。

整个公园自东向西呈带状分布,一条碧绿的河流贯穿全园,全长约 2.2 公里,绿地率约 73%。公园南北两岸由城市界面到桂庙渠水廊道划为三层系统:公园陆地绿地系统、淡水湿地系统、红树林生态湿地系统。沿水域的两侧河滩由大量绿植包围,并设有人行通道,外岸由写字楼群及高端住宅、公寓楼宇等包围,是一个 "一槽、两滩、两岸" 的高颜值景观公园,也是前海唯一永久性水廊道公园。
价值五 圈层-谈笑皆为鸿儒
城市顶级圈层标杆,世界精英齐聚于此,世界500强领袖居住首选
【对话城市未来】集2栋总部级超甲级写字楼、1栋奢华五星级酒店、顶级商业-壹方汇、2栋天际海景公寓于一体


价值六 品牌 实力保质信心
品牌开发商做背书,倾注了豪宅专家鸿荣源集团30年豪宅打造经验,代表深圳顶豪第一序列的作品;品质-寰球大师之作Kelly Hoppen、SCDA、邱德光、美国GP、LEAD8、美国SWA、美国TOPO、SED新西林等多个国际顶级大师团队的智慧在此集结


价值七 金牌物业
物业-因尊贵而崇尚金牌物管、私家会所,鸿荣源旗下最高规格“鸿玺”专属顶级定制式物业服务

【细节-匠心造就极致】9m通高的半室外阔绰落客区,12.5m挑高、面积约1200㎡的奢华大堂,宽幅达4mIMAX巨幕观景玻璃



深圳【前海鸿荣源中心·胤璞】
售楼处热线:400-608-0035【销售中心】
预约看房,置业顾问一对一对接,享受额外优惠!
在售户型图丨项目介绍丨房源丨_周边配套丨详细解答
开发商售楼处直销_欢迎来电预约享受内部折扣_恭迎品鉴〢
温馨提示:看房需提前预约,感谢您的配合!
报名看房